1. VILLAS DE LIVIA
  2. Terrains disponibles
  3. La composition d'un permis de construire
Retour

La composition d'un permis de construire

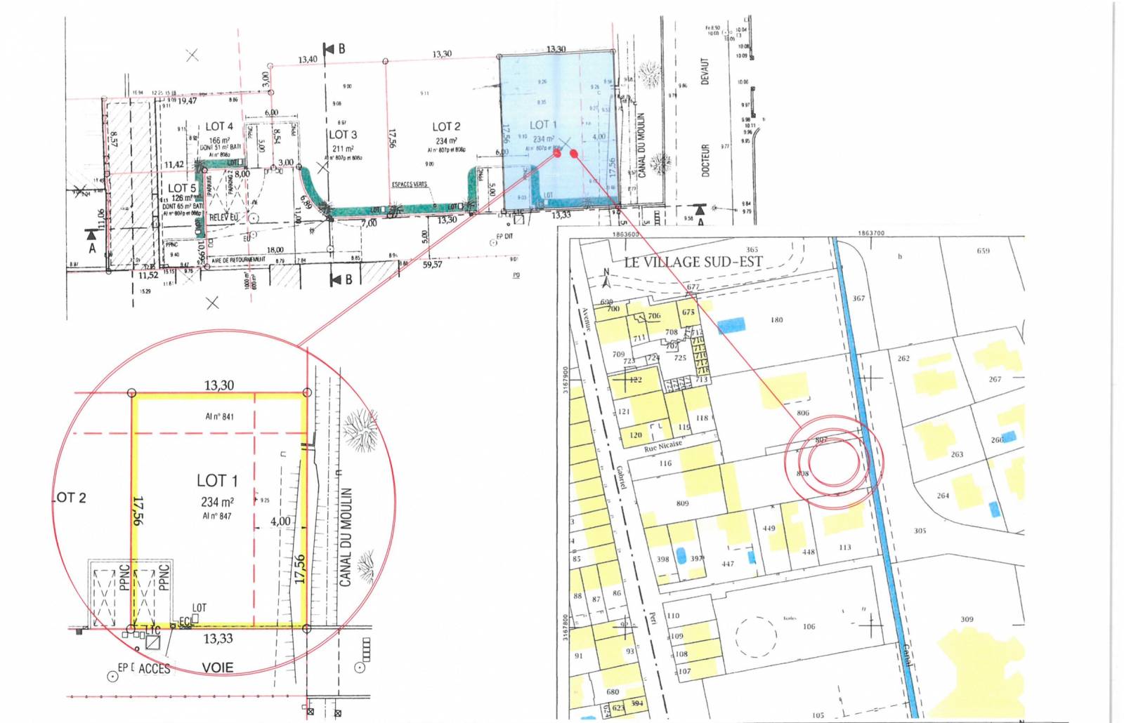
Un permis de construire se compose de 7 plans.

Tout d'abord, le plan de situation qui permet de localiser le terrain afin de définir les règles d'urbanisme.

-Le plan de masse qui fait apparaître l'implantation existante du futur bâti sur le terrain. Il matérialise aussi l'emplacement des réseaux et des arbres existants et à abattre.

Ensuite, le plan de coupe, permettant de montrer le profil du terrain ainsi que le volume extérieur de la construction.

Puis, la notice descriptive qui définie le projet dans sa globalité c'est à dire la configuration du terrain, les matériaux, les coloris... du projet pour la construction.

En cinquième position, les plans de façades et des toitures pour apprécier l'extérieur de la construction et ses hauteurs.

Un document graphique 3D modélisant en 3D la future implantation du projet dans son environnement.

Enfin, le plan de photos du terrain présentant le terrain nu avant le début de la construction. Il favorise la visualisation de son aspect extérieur et aide à regarder les constructions avoisinantes si elles sont existantes.

Il faut savoir qu'un permis de construction déposé à l'urbanisme à généralement des pièces complémentaires à fournir par la suite. 

Contactez-nous
Partager :
Nous écrire
Les champs indiqués par un astérisque (*) sont obligatoires

Ce samedi 07 Février, agence ouverte avec ou sans rendez-vous !

Devis gratuit